27棟 27件
-
新築
2,180万円
94.77㎡ (4LDK+S(納戸)) /予定 /2階建
- 建設住宅性能評価書付
- 公共下水
-
新築
1,980万円
101.25㎡ (4LDK+S(納戸)) /予定 /2階建
- 建設住宅性能評価書付
- 公共下水
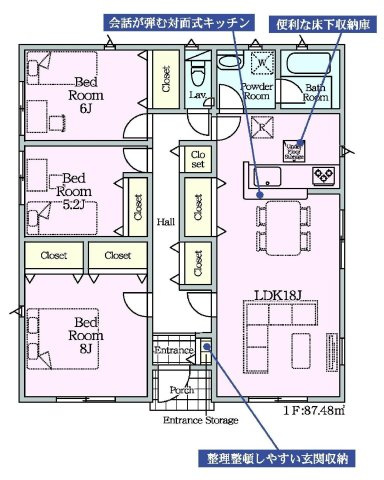
☆粕川小学校、粕川中学校が通学範囲内でお子様のいるご家庭にもお勧め
☆洗面所は通常の1.5倍の広さです!入浴後のお着替えもゆったりできますよ!
☆南庭付きなのでガーデニングやお庭プール等も楽しめます
☆月々返済4万円代~現在のお家賃よりも出費が少なく暮らすことも可能
☆浴室乾燥機を備えている広々1坪タイプバスのある物件
☆インナーバルコニー完備で急な雨でも洗濯物が安心
☆各居室収納に加え、リビング収納・廊下収納付き♪
☆地盤調査済みなので、防災面での安心感が増します
☆主寝室はゆとりある8帖です
-
2,180万円
121.73㎡ (4LDK) /築11年 /2階建
- 公共下水
徒歩6分の距離に群馬大学附属中学校があるのも魅力。こちらは中古一戸建ての物件です。こちらは南向きの物件です。トイレが2ヶ所にあるので複数人でも快適に暮らせます。上毛電鉄三俣周辺にある不動産を探すなら、株式会社スタイルエステート群馬のスタッフまでご希望の条件をお伝えください。
-
新築
1,990万円
1月6日 値下げ
110.13㎡ (4LDK) /新築 /2階建
- 建設住宅性能評価書付
- 浄化槽排水
☆高瀬小学校まで1100m」、南中学校まで1000mでお子様のいるご家庭にもお勧めです
☆車で5分以内のところに、スーパー・コンビニ・ドラッグストアがあるのでお買い物にも便利な立地です
☆主寝室は広々10.5帖です!就寝前にもゆったりくつろげます♪
☆駐車場は並列3台以上OK
☆国の定めた認定基準を満たした長期優良住宅です
☆南庭があるので休日にはガーデニングやバーベキューなども楽しめますよ♪
☆浴室にはカビの防止にもつながる浴室乾燥機が標準装備
☆女性からのニーズの高いTVインターホン付き物件です
☆南向きの物件は明るいので室内を広く演出できます(*^_^*)
富岡市でお客様にとってベストな暮らしを現実にしましょう。
0120-98-0304またはinfo@style-e.co.jpまで、株式会社スタイルエステート群馬までご連絡下さい♪ -
1,980万円
106.96㎡ (2LDK+S(納戸)) /築24年 /1階建
- 駐車2台可
- 公共下水
☆荒牧小学校まで450m、南橘中学校まで1200mでお子様のいるご家庭にもお勧め!
☆広々納戸付!ひな人形や扇風機等季節物の収納にもとても便利です!
☆解放感あるウッドデッキ付!
☆コンビニ・ドラッグストアまで徒歩圏内!
☆LDKは広々24帖!大家族でもゆったり過ごせます♪ -
新築
1,980万円
97.59㎡ (4LDK) /予定 /2階建
- 建設住宅性能評価書付
- 浄化槽排水
◎宮城小学校、宮城中学校が通学範囲内でお子様のいるご家庭にもお勧め
◎月々返済5万円代~現在のお家賃よりも出費が少なく暮らすことも可能です
◎主寝室は9.5帖あるので就寝前もゆったりお過ごし頂けます
◎バルコニーは布団が何枚も干せる広さがあります
◎防犯カメラも標準装備で防犯対策もばっちり!
◎LDKは16.25帖。隣の和室と一体利用で20.75帖の広々空間になります
ご家族でゆったりできる広さです!
◎全室南向きで陽当たり良好☆
◎浴室乾燥機が魅力的な機能的なお風呂です!
◎安心快適なTVインターホン付き物件はこちら♪
◎トイレは各階にご用意(^^♪
株式会社スタイルエステート群馬がご案内する豊富な物件情報をぜひご覧下さい。
ご利用をお待ちしております♪ -
新築
1,980万円
96.78㎡ (4LDK) /予定 /2階建
- 建設住宅性能評価書付
- 浄化槽排水
◎粕川小学校、粕川中学校が通学範囲内でお子様のいるご家庭にもお勧め!
◎月々返済5万円代~現在のお家賃よりも出費が少なく暮らすことも可能です!
◎バルコニーは布団が何枚も干せる広さがあります
◎防犯カメラも標準装備で防犯対策もばっちりです!
◎LDKは16.25帖。隣の和室と一体利用で20.75帖の広々空間になります。
ご家族でゆったりできる広さです!
◎テレワークルームは納戸としてもご利用可能です♪
◎浴室乾燥機が魅力的な機能的なお風呂です!
◎安心快適なTVインターホン付き物件はこちらです!
◎トイレは各階にございます!
株式会社スタイルエステート群馬がご案内する豊富な物件情報をぜひご覧下さい。
ご利用をお待ちしております♪ -
新築
2,180万円
99.63㎡ (4LDK) /予定 /2階建
- 建設住宅性能評価書付
- 浄化槽排水
◎粕川小学校、粕川中学校が通学範囲内でお子様のいるご家庭にもお勧め!
◎建物面積30.13坪!平屋ですがゆとりある設計!
◎月々返済5万円代~現在のお家賃よりも出費が少なく暮らすことも可能です!
◎防犯カメラも標準装備で防犯対策もばっちり!
◎パントリー収納は、非常食や調理器具の収納に便利ですよ!
◎廊下収納は掃除道具やストック品の収納に重宝します♪
◎浴室乾燥機が魅力的な機能的なお風呂です!
◎安心快適なTVインターホン付き物件はこちらです!
株式会社スタイルエステート群馬がご案内する豊富な物件情報をぜひご覧下さい。
ご利用をお待ちしております♪ -
新築
1,980万円
98.82㎡ (4LDK) /予定 /2階建
- 建設住宅性能評価書付
- 浄化槽排水
◎粕川小学校、粕川中学校が通学範囲内でお子様のいるご家庭にもお勧め!
◎月々返済5万円代~現在のお家賃よりも出費が少なく暮らすことも可能です!
◎バルコニーは布団が何枚も干せる広さがあります
◎防犯カメラも標準装備で防犯対策もばっちりです!
◎LDKは16帖。隣の和室と一体利用で20.5帖の広々空間になります。
ご家族でゆったりできる広さです!
◎1階に廊下収納をご用意!掃除道具やストック品の収納に便利です!
◎主寝室は8帖あり広々しています!
◎浴室乾燥機が魅力的な機能的なお風呂です!
◎安心快適なTVインターホン付き物件はこちらです!
◎トイレは各階にございます!
株式会社スタイルエステート群馬がご案内する豊富な物件情報をぜひご覧下さい。
ご利用をお待ちしております♪ -
新築
1,990万円
1月6日 値下げ
112.61㎡ (4LDK) /新築 /2階建
- 建設住宅性能評価書付
- 浄化槽排水
☆高瀬小学校まで1100m、南中学校まで1000mでお子様のいるご家庭にもお勧めです
☆車で5分以内のところに、スーパー・コンビニ・ドラッグストアがあるのでお買い物にも便利な立地です
☆シューズインクローゼットは第二玄関としてご利用できて便利!
☆バルコニーはホールからも出入り可能なので使い勝手が良いです
☆駐車場は3台以上駐車可能
☆国の定めた認定基準を満たした長期優良住宅です
☆南庭があるので休日にはガーデニングやバーベキューなども楽しめますよ♪
☆浴室にはカビの防止にもつながる浴室乾燥機が標準装備
☆女性からのニーズの高いTVインターホン付き物件です
☆南向きの物件は明るいので室内を広く演出できます(*^_^*)
富岡市でお客様にとってベストな暮らしを現実にしましょう。
0120-98-0304またはinfo@style-e.co.jpまで、株式会社スタイルエステート群馬までご連絡下さい♪ -
新築
2,090万円
1月6日 値下げ
114.26㎡ (4LDK) /新築 /2階建
- 駐車2台可
- 建設住宅性能評価書付
- 浄化槽排水
☆高瀬小学校まで1100m、南中学校まで1000mでお子様のいるご家庭にもお勧めです
☆車で5分以内のところに、スーパー・コンビニ・ドラッグストアがあるのでお買い物にも便利な立地です
☆バルコニー2ヶ所付き!セパレートタイプでプライバシーも守れます♪
☆主寝室は広めの10帖。お休み前もゆったり過ごせます
☆駐車場は3台OK
☆国の定めた認定基準を満たした長期優良住宅です
☆南庭があるので休日にはガーデニングやバーベキューなども楽しめますよ♪
☆浴室にはカビの防止にもつながる浴室乾燥機が標準装備
☆女性からのニーズの高いTVインターホン付き物件です
富岡市でお客様にとってベストな暮らしを現実にしましょう。
0120-98-0304またはinfo@style-e.co.jpまで、株式会社スタイルエステート群馬までご連絡下さい♪ -
新築
2,190万円
1月6日 値下げ
108.47㎡ (4LDK) /新築 /2階建
- 建設住宅性能評価書付
- 浄化槽排水
☆高瀬小学校まで1100m、南中学校まで1000mでお子様のいるご家庭にもお勧めです
☆車で5分以内のところに、スーパー・コンビニ・ドラッグストアがあるのでお買い物にも便利な立地です
☆全居室6帖以上の広さでゆとりある生活が送れます
☆駐車場は3台以上駐車可能ですよ
☆国の定めた認定基準を満たした長期優良住宅です
☆南庭があるので休日にはガーデニングやバーベキューなども楽しめますよ♪
☆浴室にはカビの防止にもつながる浴室乾燥機が標準装備
☆女性からのニーズの高いTVインターホン付き物件です
☆南向きの物件は明るいので室内を広く演出できます(*^_^*)
富岡市でお客様にとってベストな暮らしを現実にしましょう。
0120-98-0304またはinfo@style-e.co.jpまで、株式会社スタイルエステート群馬までご連絡下さい♪ -
新築
2,090万円
1月6日 値下げ
108.47㎡ (4LDK) /新築 /2階建
- 駐車2台可
- 建設住宅性能評価書付
- 浄化槽排水
☆高瀬小学校まで1100m、南中学校まで1000mでお子様のいるご家庭にもお勧めです
☆車で5分以内のところに、スーパー・コンビニ・ドラッグストアがあるのでお買い物にも便利な立地です
☆全居室6帖以上の広さでゆとりある生活が送れます
☆駐車場は2台以上駐車可能ですよ
☆国の定めた認定基準を満たした長期優良住宅です
☆南庭があるので休日にはガーデニングやバーベキューなども楽しめますよ♪
☆浴室にはカビの防止にもつながる浴室乾燥機が標準装備
☆女性からのニーズの高いTVインターホン付き物件です
☆南向きの物件は明るいので室内を広く演出できます(*^_^*)
富岡市でお客様にとってベストな暮らしを現実にしましょう。
0120-98-0304またはinfo@style-e.co.jpまで、株式会社スタイルエステート群馬までご連絡下さい♪ -
新築
2,090万円
1月6日 値下げ
110.12㎡ (4LDK+S(納戸)) /新築 /2階建
- 駐車2台可
- 建設住宅性能評価書付
- 浄化槽排水
☆高瀬小学校まで1100m、南中学校まで1000mでお子様のいるご家庭にもお勧めです
☆車で5分以内のところに、スーパー・コンビニ・ドラッグストアがあるのでお買い物にも便利な立地です
☆ストレージルームは扇風機やひな人形等季節物の収納に重宝します
☆駐車場は2台以上駐車可能ですよ
☆国の定めた認定基準を満たした長期優良住宅です
☆南庭があるので休日にはガーデニングやバーベキューなども楽しめますよ♪
☆浴室にはカビの防止にもつながる浴室乾燥機が標準装備
☆女性からのニーズの高いTVインターホン付き物件です
☆南向きの物件は明るいので室内を広く演出できます(*^_^*)
富岡市でお客様にとってベストな暮らしを現実にしましょう。
0120-98-0304またはinfo@style-e.co.jpまで、株式会社スタイルエステート群馬までご連絡下さい♪ -
2,090万円
73.41㎡ (3LDK) /築33年 /10階建
- エレベーター
- 公共下水
歩いて306mの場所に、ジョイフーズ 前橋南店があります。年度内入居可能なので、まずは気軽にご相談ください。内装リフォーム後のきれいになった状態でお引渡しできます。来訪者を確認できる、TVインターホン付きです。夢のマイホームを手に入れるなら、株式会社スタイルエステート群馬にお任せ下さい。こだわりやご要望などございましたらお電話又は、直接お尋ね下さい。
-
新築
2,180万円
1月6日 値下げ
112.62㎡ (4LDK) /新築 /2階建
- 建設住宅性能評価書付
- 浄化槽排水
◎時沢小学校、富士見中学校が通学範囲内でお子様のいるご家庭にもお勧め!
◎雨でも洗濯物が濡れないインナーバルコニー付き!2階ホールからバルコニーへ出られるので使い勝手が良いですよ!
◎ちょっとしたお庭つきで、ガーデニングも楽しめます!
◎大容量で収納の自由度が高いウォークインクロゼットが標準装備です!
◎シューズインクロークは第二玄関としてもご利用できますよ!
◎お留守番も安心なモニター付きインターホン付き!
◎浴室乾燥機は洗濯物を乾かす以外にもカビの発生を抑制する優れもの♪
◎月々返済5万円代~現在のお家賃よりも出費が少なく暮らすことも可能です!
◎トイレは各階にご用意(^^♪
-
新築
2,190万円
124.21㎡ (4LDK) /予定 /2階建
- 建設住宅性能評価書付
- 公共下水
◎浴室には16型TV付!快適なバスタイムが過ごせます☆
◎洗面所は通常の1.5倍の広さです!入浴後のお着替えもゆったりできますよ!
◎LDKは広々18.5帖!大家族でもゆったり過ごせます♪
◎キッチン横にも収納があります♪
◎キッチンにはゴミ出しに便利な勝手口がありますよ!
◎シューズインクロークはベビーカー等も収納できて重宝しますよ♪
◎浴室乾燥機は衣類の乾燥以外にも、お風呂のカビ発生を防ぐ優れもの!
◎トイレは各階にご用意(^^♪
前橋市で、健やかに暮らせる戸建てを株式会社スタイルエステート群馬がご提供致します。どうぞお気軽に0120-98-0304までご連絡下さい(^^♪ -
新築
2,080万円
12月25日 値下げ
104.49㎡ (4LDK) /予定 /2階建
- 建設住宅性能評価書付
- 浄化槽排水
◎箕輪小学校、箕郷中学校が通学範囲内でお子様のいる方にもおススメです!
◎主寝室が9.2帖でご用意。就寝前にゆったりとお過ごし頂けます
◎ウォークインクローゼットは洋服の収納以外にも季節物の収納にも重宝しますよ
◎各階に廊下収納もご用意しています
◎広々インナーバルコニーは布団も干せる広さです。急な雨でも洗濯物が濡れずに安心です
◎浴室乾燥機が魅力的な機能的なお風呂です
◎防犯カメラも標準装備で安全対策もバッチリ
◎安心快適なTVインターホン付き物件はこちらです
◎トイレは各階にございます
株式会社スタイルエステート群馬がご案内する豊富な物件情報をぜひご覧下さい。
ご利用をお待ちしております♪ -
新築
2,090万円
97.29㎡ (3LDK) /新築 /2階建
- 建設住宅性能評価書付
- 公共下水
◎限定1棟!早い者勝ちです♪
◎渋川南小学校まで750m・渋川中学校まで800mでお子様のいるご家庭にもお勧め
◎スーパー・コンビニ・ドラッグストア・駅が徒歩圏内で生活便利な立地♪
◎全居室南向きなので陽当たり良好です☆
◎主寝室にフリースペース付き♪在宅ワークも可能です
◎家事動線の考えられた生活しやすい間取り
◎モニター付きインターフォンがあればお子様のお留守番も安心ですね
◎トイレは各階にご用意しています
◎浴室乾燥機は、こだわり条件にも多い一押しの設備です
株式会社スタイルエステート群馬はお客様が日々満足に暮らせるよう、榛東村・前橋市・渋川市にある戸建て探しのお手伝いを致します。0120-98-0304からお気軽にご依頼下さい。 -
新築
2,180万円
12月25日 値下げ
103.68㎡ (3LDK+S(納戸)) /予定 /2階建
- 駐車2台可
- 建設住宅性能評価書付
- 浄化槽排水
◎箕輪小学校、箕郷中学校が通学範囲内でお子様のいる方にもおススメです!
◎全室南向き!2面の窓付きとなっており、光溢れる快適な室内環境です!
◎在宅勤務部屋としても納戸としても利用できるストレージルームはとても便利です
◎LDKにはクローゼットもご用意しております!
◎広々インナーバルコニーは布団も干せる広さです。急な雨でも洗濯物が濡れずに安心です!
◎浴室乾燥機が魅力的な機能的なお風呂です!
◎防犯カメラも標準装備で安全対策もバッチリ!
◎安心快適なTVインターホン付き物件はこちらです!
◎トイレは各階にございます!
株式会社スタイルエステート群馬がご案内する豊富な物件情報をぜひご覧下さい。
ご利用をお待ちしております♪ -
2,180万円
98.95㎡ (4LDK) /築25年 /2階建
- 駐車2台可
- 公共下水
■西小学校まで徒歩5分・並榎中学校まで徒歩4分!
-
新築
1,990万円
1月6日 値下げ
112.61㎡ (4LDK) /新築 /2階建
- 駐車2台可
- 建設住宅性能評価書付
- 浄化槽排水
☆高瀬小学校まで1100m」、南中学校まで1000mでお子様のいるご家庭にもお勧めです
☆車で5分以内のところに、スーパー・コンビニ・ドラッグストアがあるのでお買い物にも便利な立地です
☆2階ホール部分は広めな設計です!ホールからバルコニーにも出入り可能です!
☆駐車場は並列2台以上OK
☆国の定めた認定基準を満たした長期優良住宅です
☆南庭があるので休日にはガーデニングやバーベキューなども楽しめますよ♪
☆浴室にはカビの防止にもつながる浴室乾燥機が標準装備
☆女性からのニーズの高いTVインターホン付き物件です
☆南向きの物件は明るいので室内を広く演出できます(*^_^*)
富岡市でお客様にとってベストな暮らしを現実にしましょう。
0120-98-0304またはinfo@style-e.co.jpまで、株式会社スタイルエステート群馬までご連絡下さい♪ -
新築
1,980万円
12月25日 値下げ
98.82㎡ (4LDK+S(納戸)) /新築 /2階建
- 駐車2台可
- 建設住宅性能評価書付
- 公共下水
◎細井小学校、鎌倉中学校が通学範囲でお子様のいるご家庭にもお勧めです!
◎インナーバルコニーは急な雨でも洗濯物が濡れずに安心です!
◎玄関ホールにはクローゼットをご用意しております♪
◎浴室乾燥機を備えている広々1坪タイプバスのある物件です!
◎玄関灯は人感センサー付き!
◎お子様のお留守番も安心な、モニター付きインターホン標準装備です!
◎地盤調査済みなので、防災面での安心感が増しますね!
◎前橋北病院も近くていざという時にも安心です。
◎トイレは各階にご用意しています(^^♪
マイホーム探しは、不動産情報が豊富な株式会社スタイルエステート群馬にお任せください。お問合せは0120-98-0304まで連絡お待ちしております。
-
新築
2,080万円
1月12日 値下げ
112.61㎡ (3LDK+S(納戸)) /新築 /2階建
- 駐車2台可
- 建設住宅性能評価書付
- 公共下水
◎西小学校まで500m、富岡中学校まで1700mでお子様のいるご家庭にもお勧め!
◎全居室6帖以上の広さでご用意。ゆとりある生活が送れますよ。
◎安心の長期優良住宅です!
◎LDKは広々17.5帖!大家族でもゆったり過ごせます♪
◎在宅勤務部屋としても納戸としても利用できるストレージルームはとても便利です☆
◎シューズインクロークはベビーカー等も収納できて重宝しますよ!
◎急な雨でも洗濯物が濡れずに安心です。ワイドインナーバルコニー付き!
◎コンビニまで徒歩2分でちょっとしたお買い物に便利ですよ!
◎お子様のお留守番も安心なモニター付きインターホン標準装備です!
◎浴室乾燥機は洗濯物を乾かす以外にもカビの発生を抑制する優れもの!
◎トイレは各階にございます(^^♪ -
新築
1,990万円
11月17日 値下げ
111.78㎡ (4LDK+S(納戸)) /新築 /2階建
- 駐車2台可
- 建設住宅性能評価書付
- 公共下水
☆原小学校まで1383m、富士見中学校まで669ⅿでお子様のいるご家庭にもお勧めです!
☆月々返済4万円代~現在のお家賃よりも出費が少なく暮らすことも可能です!
☆LDKは17.5帖広々空間です!
☆国の定めた認定基準を満たした長期優良住宅です☆
☆浴室にはカビの防止にもつながる浴室乾燥機が標準装備です。
☆女性からのニーズの高いTVインターホン付き物件です。
☆キッチンにはゴミ出しに便利な勝手口付きです。
☆1階に嬉しい廊下収納付きです(*^_^*)
☆トイレは各階にご用意しています(^^♪
前橋市でお客様にとってベストな暮らしを現実にしましょう。0120-98-0304またはinfo@style-e.co.jpまで、株式会社スタイルエステート群馬までご連絡下さい♪ -
新築
2,080万円
1月12日 値下げ
108.47㎡ (4LDK+S(納戸)) /予定 /2階建
- 建設住宅性能評価書付
- 公共下水
◎富岡小学校まで1000ⅿ、富岡中学校まで750ⅿでお子様のいるご家庭にもお勧め!
◎在宅勤務部屋としても納戸としても利用できるストレージルームはとても便利です☆
◎インナーバルコニーがあれば急な雨でも洗濯物が濡れずに安心です!
◎ウォークインクローゼットは人が入れる程の広さですよ!
◎長期優良住宅なので税制面でも優遇されます!
◎お子様のお留守番も安心なモニター付きインターホン標準装備です!
◎浴室乾燥機は洗濯物を乾かす以外にもカビの発生を抑制する優れもの!
◎トイレは各階にご用意(^^♪ -
2,180万円
104.34㎡ (4LDK) /築26年 /2階建
- 駐車2台可
- 閑静な住宅地
- 公共下水
●隣接のお宅との距離も十分取れているので、圧迫感もなく快適にお過ごしいただけます♪
☆粕川小学校、粕川中学校が通学範囲内でお子様のいるご家庭にもお勧め
☆全居室6帖以上の広さでゆとりある生活が送れます
☆LDKは広々16.5帖。和室と一体利用で22.5帖の広々空間になります
☆南庭付きなのでガーデニングやお庭プール等も楽しめます
☆月々返済5万円代~現在のお家賃よりも出費が少なく暮らすことも可能
☆浴室乾燥機を備えている広々1坪タイプバスのある物件
☆地盤調査済みなので、防災面での安心感が増します
☆6帖の和室があるので客間としても利用できて便利です♪