物件を探すSEARCH
キーワードから探す
売買新着物件NEW
をもっと見る
おすすめ物件RECOMMEND
更新情報INFORMATION
|
|
前橋市三俣町一丁目土地ご売却依頼ありがとうございます!
|
|
|---|---|---|
|
|
☆今週のオープンハウスのご案内☆
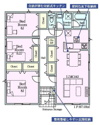
2月 14日(土)・15日(日) 10:00~17:00 ※ご予約のお客様優先にてご案内させて頂いております。 ◆前橋市関根町 全4棟 今回販売 最終1棟! ①号棟 ご成約御礼! ③号棟 ご成約御礼! ④号棟 ご成約御礼! 【前橋市の新築一戸建て情報②】 ◆前橋市箱田町 全1棟 堂々完成! |
|
|
|
前橋市小相木町一戸建て売却査定依頼を頂きました。
|
|
|
|
前橋市下小出町マンション売却査定依頼を頂きました。
|
|
|
|
前橋市六供町一戸建て売却査定依頼を頂きました。
|
お客様の声CUSTOMER
-
- YK様
- たまたま分譲住宅のチラシを見て電話をしたのがスタイルエステートさんでした。都丸さんには、物件購入に関する手続きや住宅ローンの組み方等、様々な疑問に対して親切・丁寧にご対応いただきました。決して押し付けではなく、私達家族に寄り添ったスタイルをご提案いただいた中で、良いこと悪いこと含め全て正直にお話しいただいたことが印象的でした。「この方なら信頼できる」、そう思い安心して購入を決めることができました。物件購入後も、困りごとや疑問点があれば親身になってご相談いただき、アフターフォローも万全です。
大変良いご縁に巡り会うことができました。都丸さん、本当にありがとうございました。今後とも是非よろしくお願いいたします。
-
- Seisho TANAKA 様
- 中古住宅の購入は想定外の連続です。堀口様は、判断に迷うときや困っているときに、その場で解決に向けた手がかりを提案してくださいました。不動産のプロとしての引き出しの多さに感服しながら、安心して検討や決断をすることができました。Googleの口コミに高い評価が並んでいて、それぞれが借り物ではない自分の言葉でコメントを入れているのを見て、問い合わせをさせていただいたのですが、お取引を終えた現在、皆様のコメントは嘘ではなかったと改めて感じています。大変お世話になりました。どうもありがとうございました。
-
- 新井良一 様
- 新居の購入と旧宅の販売でお世話になりました。旧宅の販売では専門知識が無くて不安でしたが堀口社長の適切な提案と迅速な対応で良い条件で販売することが出来ました。
堀口社長に掛けた1本の電話から幾つかの良い縁が繋がりました。
ありがとうございました。
-
- MS 様
- なんとなく検索して見つけた中古戸建ての問合せをしたところ、都丸さんからご連絡を頂きました。
シンママなので不安しか無かったのですが、仕事や子供の事など色々とご配慮頂き、丁寧に相談にも返答頂けて本当に安心しました。
銀行さんや業者さんが、まだまだ時間がかかりそうと言っている事も、なぜかいつも予定通りで大丈夫ですと連絡をくれて、不思議なほどスムーズに進めて頂けました。
とても物腰柔らく口調も優しくて安心して何でも相談する事が出来ました。
とても素晴らしいご縁を頂けた事、感謝しかありません。
他業種ではありますが、仕事をする人間として見習いたいと思う事もいっぱいあり、学ばせても頂きました。
一通りの手続きが済み、あまりお話が出来ないことが寂しいくらいです。
これからも何かあれば相談させていただきたいです!
-
- ヴェラアズール 様
- 初めての来店はなんとなくでしたが的確で迅速な対応をしていただので1ヶ月ちょっとで契約出来ました。
他の仲介業者さん行く前に是非一度行ってみてください。
文句のつける点がありません。
スタッフSTAFF
スタッフ一覧弊社について
ABOUT US
弊社は、前橋市・渋川市・吉岡町・高崎市をメインエリアとした不動産販売会社です。「戸建て」「土地」「中古マンション」「収益物件」など不動産のことなら何でもお気軽にご相談ください。
豊富な物件数と適切なご提案で、お客様満足度「地域No1」を目指しています!
前橋市で新築戸建てをお探しの方へ
新築戸建てをお探しの方にとって、前橋市は非常に魅力的な選択肢です。群馬県の県庁所在地である前橋市は、前橋市は高崎市や伊勢崎市など、周辺都市へのアクセスも良好で、通勤や生活面での利便性が高い点が評価されています。また、都市の規模が適度でありながら、自然環境が豊富なため、静かで落ち着いた環境の中で生活することができます。前橋市の新築戸建ては、家族連れや新婚カップルに特に人気のエリアです。
■前橋市の特徴
前橋市は群馬県の中央に位置しており、人口は約33万人(2023年時点)です。市内には利根川が流れ、赤城山を背景にした美しい景観が広がります。この地域は、四季折々の自然が楽しめる環境が整っており、春の桜、夏の新緑、秋の紅葉、冬の雪景色など、自然の変化を感じながら暮らすことができます。前橋市は歴史的にも文化的にも豊かな地域で、前橋公園や敷島公園などの大型公園、群馬県立歴史博物館、アーツ前橋といった文化施設も点在しています。また、地域の伝統行事である「前橋まつり」は毎年多くの観光客が訪れ、地元住民にとっても大切なイベントです。前橋市内で新築戸建てを購入することで、このような豊かな自然と文化に囲まれた生活を享受できます。
■前橋市の鉄道
前橋市は鉄道網が発達しており、JR東日本の両毛線や上越線が通っています。前橋駅はJR両毛線の主要駅で、ここから東京方面へのアクセスも容易です。特に、群馬県内で新幹線を利用したい場合は、隣接する高崎市の高崎駅から上越新幹線や北陸新幹線を利用することができます。通勤や通学においても、前橋市内の移動や近隣都市へのアクセスが非常に便利です。
■前橋市で暮らしたい方
前橋市で新築戸建てを購入し、暮らしたいと考えている方には、家族向けの住環境が整っています。前橋市は、教育施設が充実しており、市内には前橋市立の小中学校が多数あり、群馬大学や前橋工科大学といった大学もあります。また、静かな住宅街が多く、特に赤城山周辺や前橋南部エリアは、新築戸建ての開発が進んでおり、自然環境と都市機能の両立が可能です。周辺には、子どもたちが遊べる公園も多く、家族での生活が非常にしやすい環境が整っています。
■前橋市の医療機関
前橋市は医療機関も充実しており、安心して暮らすことができます。前橋市立病院や群馬大学医学部附属病院などの大規模な医療機関が市内に位置しており、専門的な治療や緊急時の対応も万全です。また、市内にはクリニックや歯科医院、リハビリテーション施設も多く、日常的な医療ニーズにも対応しています。これにより、前橋市で新築戸建てを購入しても、健康面での安心感を持って暮らすことができます。
■前橋市の子育て環境と子育て支援
前橋市は、子育て支援が充実しており、子どもを育てる家庭にとって非常に住みやすい環境です。市内には、多数の保育園や幼稚園があり、働くご両親にとっても安心の環境が整っています。また、前橋市は「子ども未来課」を設置し、育児支援や教育支援を行っています。たとえば、前橋市では独自の子育て支援施策として、未就学児を対象にした保育料補助や、親子で参加できる子育てサークルなど、地域とのつながりを大切にした支援が充実しています。また、前橋市内には赤城山や敷島公園といった自然豊かな場所があり、子どもたちがのびのびと遊ぶことができる環境も整っています。
■前橋市の暮らしについて
前橋市で新築戸建てを購入することは、快適な生活環境を手に入れることもできます。四季を通じて楽しめる自然環境や、充実した都市機能が揃う前橋市は、居住地として非常に人気があります。また、前橋市は東京などの大都市へのアクセスも良好でありながら、都市部の喧騒から離れた落ち着いた環境での生活が可能です。前橋市での暮らしは、快適さと便利さを兼ね備えた理想的なライフスタイルを実現します。
■前橋市の商業施設
前橋市には、多くの商業施設があり、生活に必要なものが揃う便利な環境が整っています。代表的なショッピングエリアとしては、けやきウォーク前橋があり、ここではファッション、グルメ、日用品など幅広い商品が揃います。また、イオンモール高崎やベルクス前橋など、家族連れにも人気のある大型ショッピングセンターもあります。前橋市内には、地元の商店街やスーパーも多く、日常の買い物にも困ることはありません。前橋市で新築戸建てを購入した方々は、これらの商業施設を活用し、便利な生活を送ることができます。
まとめ
前橋市で新築戸建てを探している方にとって、自然と都市の利便性が両立したこの街は、非常に魅力的な居住地です。教育環境や医療施設、商業施設が充実しており、子育て世帯や働く世代にとっても理想的な環境が整っています。四季折々の自然を楽しみながら、便利で快適な生活を前橋市で手に入れてみてはいかがでしょうか。




