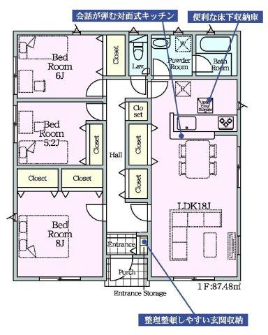
【間取り】収納充実♪南東向きの3LDKで陽当たり良好な間取りです! 土地面積201.70㎡、建物面積87.48㎡で十分な広さです!
- 建物面積
- 87.48㎡
- 築年月
- 2026年3月(予定)
-
室内洗濯機置場
-
TVモニタ付きインターホン
-
カウンターキッチン
-
浴室乾燥機
- 販売戸数
- 4戸
- 総戸数
- 4戸
- 間取り / 詳細
- 3LDK
LDK 18.0帖 1室/洋室 8.0帖 1室/洋室 5.2帖 1室/洋室 6.0帖 1室 - 向き
- 南東
- 建物面積(坪数)
- 87.48㎡(26.46坪)
- 土地面積(坪数)
- 201.70㎡(61.01坪)
- 建ぺい率 /
容積率 - 70%/200%
- 築年月
- 2026年3月(予定)
- 駐車場 /
月額料金 - 有 -
- 土地権利
- 所有権
- 土地
(敷金 / 保証金) - - / -
- 建物構造
- 木造 / 2階建
- 傾斜地部分面積
- -
- 路地状敷地
- -
- 私道負担面積
- -
- セットバック
- 無
- 高圧線下面積
- -
- 施工会社
- -
- 用途地域
- 無指定
- 地目 / 地勢
- 宅地 / -
- 接道状況
- 一方(南 公道 6.0m)
- 国土法届出要否
- 不要
- 都市計画
- 非線引区域
- 総区画数 /
販売区画数 - 4区画/4区画
- 現況
- 未完成
- その他
法令上の制限 - -
- 取引態様
- 一般媒介
- 引渡し
- 2026年3月中旬
- 取引条件の
有効期限 - 2026年02月24日
- 設備条件
-
- 陽当り良好 / 室内洗濯機置場 / プロパンガス / 公営水道 / 浄化槽排水 / 電気有 / 駐車2台可 / ガスコンロ / コンロ2口以上 / システムキッチン / カウンターキッチン / コンロ3口 / 浴室乾燥機 / 温水洗浄便座 / 浴室1坪以上 / 床下収納 / TVモニタ付インターホン / 複層ガラス
- 設備(その他)
-
-
-
- 物件番号
- 101017648
- 管理コード
- 高崎市箕郷町上芝A8-3
- 建築確認番号
- 第25UDI1W建08924号号
- 情報更新日
- 2026年02月10日
- 次回更新予定日
- 2026年02月24日
- 取扱会社
-
- 株式会社スタイルエステート群馬®
- 群馬県前橋市箱田町345-6
- TEL:0120-98-0304
- 群馬県知事 (4) 第6939号
- (社)全日本不動産協会会員
- 備考
- こだわりポイント満載のクレイドルガーデン高崎市箕郷町上芝第8 3号棟(平屋)。来客が一目でわかるTVインターホン付き。複層ガラスの断熱効果があなたの生活を快適にします。年内入居可能なので、簡単スムーズにお引っ越しできます。詳細のご確認や内覧のご予約などは、0120-98-0304から株式会社スタイルエステート群馬までお気軽にご連絡ください。
-
スーパー
コープ みさと店
794m(10分)
-
生活雑貨店
セリア みさと店
840m(11分)
-
ショッピングセンター
HARUNAMO
906m(12分)
-
ホームセンター
コメリハード&グリーン高崎箕郷店
975m(13分)
-
内科
みさと診療所
1043m(14分)
-
中学校
高崎市立箕郷中学校
1249m(16分)
-
小学校
高崎市立箕輪小学校
1674m(21分)
- 月々の支払額
- 9.6円
- 購入希望物件価格
-
万円
- 頭金
-
万円
- 金利
-
%
- 返済額(ボーナス1回分)
-
万円
- 返済期間
-
年
物件の特徴
セールスポイント
☆人気の平家住宅です!
☆スーパー・ドラッグストアが徒歩圏内でお買い物に便利ですよ!
☆LDK広々18帖!大家族でもゆったりできる広さです
高崎市・前橋市で新居をお探しの方はスタイルエステート群馬にお任せ下さい。
0120-98-0304までご連絡をお待ちしています!
ポイント
システムキッチン TVモニタ付インターホン 駐車2台可 LDK18帖以上 土地50坪以上
担当者のコメント
基本情報
設備条件
その他
周辺施設
支払いシミュレーション
※ボーナスは自動で年2回分で計算されます。
近隣の物件
クレイドルガーデン高崎市箕郷町上芝第8 3号棟(平屋)
2,180万円
-
3LDK(87.48㎡)

西岡 美晴
◎各居室・LDK・ホールには収納付きです♪
◎人感センサー付き玄関灯や防犯カメラも標準装備で防犯対策もバッチリです!
◎お子様のお留守番にも安心なTVモニターつきインターホンです!
◎浴室乾燥機付きでお風呂のカビ対策もできますよ!
◎家事動線の考えられた生活しやすい間取りです♪
◎月々返済5万円代~現在のお家賃よりも出費が少なく暮らすことも可能です♪
一生に一度のマイホーム探しは、ぜひ新築戸建てで。お客様の住まい探しをサポート致します。不動産の購入を検討の方はお気軽にお問い合わせください☆